Oceanside Youth Center | Integrated Studio ARC 306

Collaborators: Joao Eduardo Ribeiro & Gabriel Figueroa

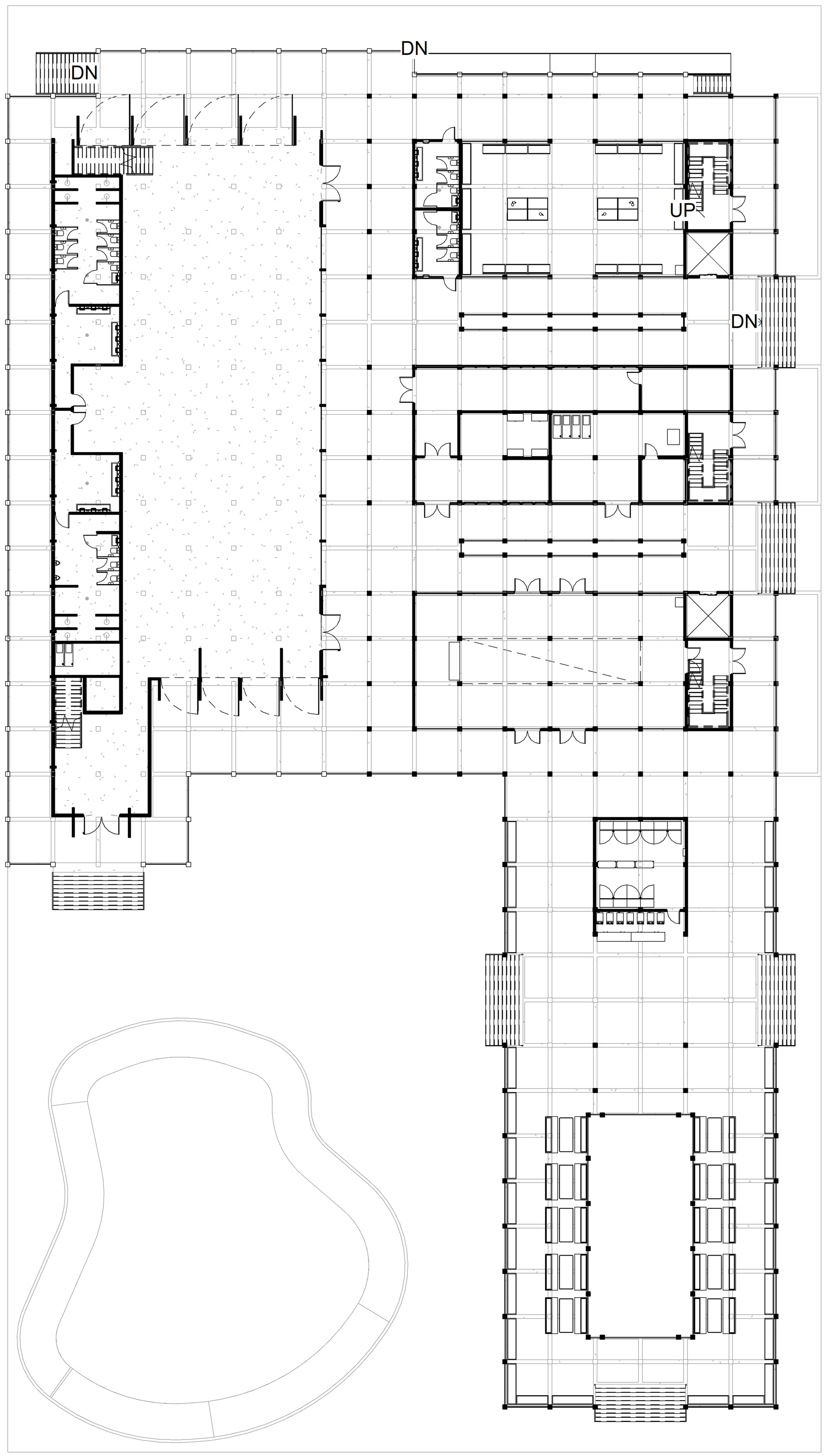
Oceanside Youth Center is a vision for a campus to enhance and encourage Miami’s fitness and recreational lifestyle. Located along Collins Avenue and 82nd Street, adjacent to Oceanside Beach Park in North Miami Beach, our site is a 330 ft x 180ft undeveloped lot. The Project splits the program across several buildings, with a gymnasium occupying the North-Western quadrant with supporting programs in the adjacent butterfly-roofed structures. This project’s structural support is a 10’ by 10’ concrete grid creating a harmonious texture of materials between the concrete gym against the clapboard-infilled butterfly structures, in a similar fashion to Louis Khan’s materiality composition. The butterfly-roofs perform the task of water collection on the site, feeding down a large water spout into a reflecting pool situated underneath the decking. Developed with flood elevations in mind, the project has a 5’ raise from ground elevation, leaving ample room for handling storm surges while addressing longevity in this climate. Over 80% of the campus operates using passive cooling strategies, incorporating wooden louver systems as screens for spaces. Our goal was to develop a youth center that would incorporate the existing skatepark and its functions while enhancing the surrounding landscape.

Previous
Previous

The Elusive East West | Options Studio ARC 408

Next
Next

Miami Beach Center of Architectural Arts | Integrated Studio ARC 305